Kiedy Architekt po 10-ciu latach zabiera się za projekt swojego domu
Studia na Wydziale Architektury i Urbanistyki Politechniki Gdańskiej skończyłam w 2008 roku w listopadzie, w kwietniu tego samego roku po 1,5 roku zrezygnowałam z pracy w biurze architektonicznym w którym zajmowałam się projektowaniem domów jednorodzinnych i osiedli mieszkaniowych. Dodatkowo w między czasie zaczęłam też projektować wnętrza, czym zajmuję się nadal i podobno całkiem nieźle mi to wychodzi.
Dlaczego odeszłam od projektów kubaturowych? Okazało się, że ta praca wygląda nieco inaczej niż sobie wyobrażałam. Kiedy dotarło do mnie, że architektura to 5 % pracy twórczej, a 95% pracy wyrobniczej składającej się na projekt budowlany, uzgodnienia z urzędami i branżystami było już dla mnie jasne, że to nie do końca to co chcę robić w życiu.
Właśnie dlatego zdecydowałam się na to, że to wnętrza będą dla mnie tym kierunkiem, w którym się odnajduję jako Architekt.
Właśnie dlatego zdecydowałam się na to, że to wnętrza będą dla mnie tym kierunkiem, w którym się odnajduję jako Architekt.
Kiedyś marzyłam o projekcie własnego domu, po latach myślałam o tym, że chyba bym w to nie weszła, ewentualnie remont. Stąd pojawił się pomysł kupna domu do remontu. Nasza stodoła jednak nie jest takim zwykłym domem i niestety remont nie wchodził tu w grę, a przebudowa, z rozebraniem części budynku.
Architekt swój najgorszy klient
Takim oto sposobem wróciłam na tory projektowe, których unikałam przez 10 lat, więc sama sobie zrobiłam pod górkę. Architekt jest dla siebie najgorszym klientem przynajmniej ja tak mam. Kiedy ma się do dyspozycji przed sobą klienta, który jest odbiorcą naszego projektu mamy dialog i rozmowę między dwoma osobami.
Jeśli Architekt projektuje dla siebie mamy monolog schizofrenika, który dyskutuje ze sobą w myślach próbując przekonać samego siebie, że dane rozwiązanie jest lub nie jest dobre. Czasem jeszcze dochodzi do tego opinia innego zaprzyjaźnionego Architekta lub własnego partnera, który widząc to co próbujesz uskuteczniać powie ci wprost „beznadzieja” doprowadzając cię tym do frustracji i płaczu.
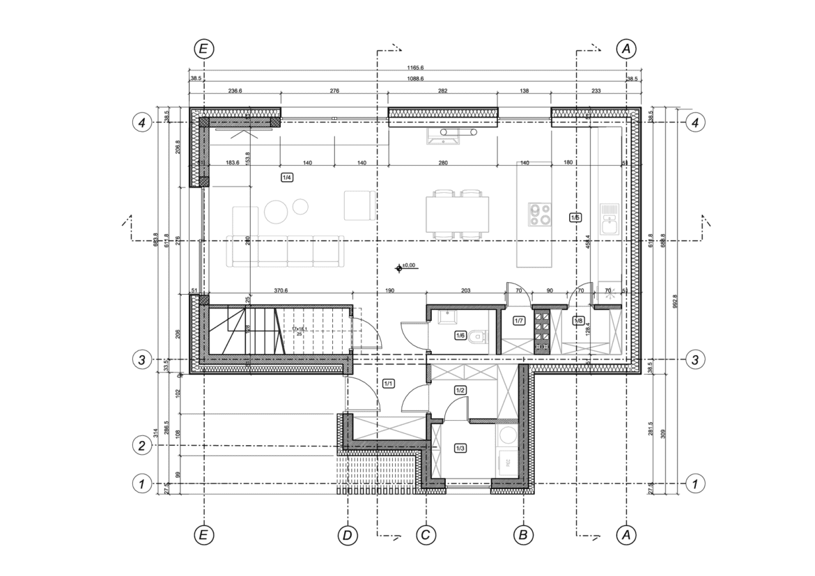
Na szczęście są też osoby, których konstruktywny kopniak w tyłek jest tym co najlepiej mobilizuje do pracy. Ostatecznie dochodzi się w końcu do wniosku, że projektowanie własnego domu to ciekawe i satysfakcjonujące doświadczenie i może przynieść mimo wszystko dużo radości. Najbliższy tydzień to czas na zakończenie projektu budowlanego i wysłanie go do branżystów. Trzymajcie kciuki, żebym dotrwała do końca i złożyła projekt w Starostwie w Wejherowie.
Jak oceniacie ostateczny układ funkcjonalny? Zadziała to w realnym użytkowaniu?


